Trois bonnes raisons de choisir le Weidmüller Configurator

Conceptions de configuration éprouvées en 3D réelle

Conceptions de configuration éprouvées en 3D réelle

Utilisation numérique des informations du produit basée sur la norme avancée eCl@ss. La vérification intégrée de la plausibilité et de la collision avec la documentation numérique complète vous permet de compter à 100 % sur votre configuration.

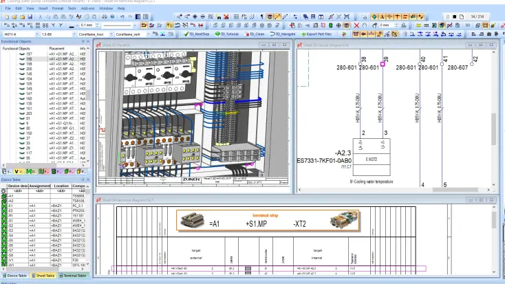
Intégration eCAD transparente

Intégration eCAD transparente

Les interfaces intégrées permettent un échange simple de données sur les produits entre le WMC et tous les outils d'ingénierie courants, comme Zuken E³, EPLAN et autres.

Interfaces de production automatisée

Interfaces de production automatisée

Pour l'assemblage ultérieur, l'étiquetage avec M-Print® PRO et le câblage, le WMC fournit toutes les informations numériques nécessaires à l'automatisation complète des process.

Ingénierie numérique facile

Les process d'ingénierie doivent être réalisés avec une rapidité, une précision et un niveau d'efficacité toujours plus grands. Le marché d'aujourd'hui s'attend à une compréhension simple et facile de la configuration et de la commande de flux de travail. Cela exige des outils intelligents qui fournissent un soutien optimal pour les process de planification complexes.

Le Weidmüller Configurator est une solution logicielle pour la sélection, la configuration et la commande de rails et de composants de rails profilés de la gamme Weidmüller. L'outil prend en charge les flux de travail d'ingénierie continus, de la planification avec les systèmes eCAD jusqu'à la documentation.

Notre configurateur combine une connaissance approfondie du produit avec la CAO dans le process de devis. Sa sélection intuitive de composants et d'accessoires adaptés, d'assistants intelligents et de placements par glisser-déplacer dans l'affichage 3D, combinée à une documentation en ligne complète, offre un soutien précieux à nos clients.

Vincent Vossel, responsable de la gestion du développement commercial

Ingénierie numérique - intuitive, simple, rapide

Créez votre configuration à partir de la gamme de produits numériques Weidmüller

VOS AVANTAGES

  • La vérification intégrée de la plausibilité et de la collision
  • Interfaces intégrées avec les systèmes eCAD courants
  • Service de livraison rapide pour l'obtention rapide de borniers ou de boîtiers assemblés individuellement
  • Assistants intégrés pour une assistance optimale lors de la configuration

Lancez votre planification numérique désormais

Lancez votre planification numérique désormais

This is a YouTube video. By clicking on this video, you agree to Google/YouTube's Privacy Policy & Terms of Use . You also agree to our Privacy Policy.

Informez-vous dans la vidéo sur le Weidmüller Configurator (WMC) et profitez de ses avantages.

Utilisez le service de livraison rapide

Profitez des avantages du service de livraison rapide et obtenez des borniers ou des boîtiers déjà équipés dans les plus brefs délais.

Une offre en quelques minutes
Votre commande est automatiquement traitée après avoir terminé votre configuration dans le WMC

Assemblage avec des quantités de 1 ou plus
Assemblage prêt à installer répondant à vos spécifications individuelles

Service de livraison en 4 jours + Temps d'envoi
Délai de livraison régulier si vous optez pour la gamme de livraison rapide

Cela peut également vous intéresser :

Conseil et support

Vincent Vossel

responsable de la gestion du développement commercial | Weidmüller Interface GmbH & Co. KG

* Required fields